
2026浙大考研快题真题
最强解析来了!
三石教研组深度分析26年考场原题
告诉你最全面的解题方案!
5000字长篇精准分析
方案手绘+解题思路铺陈
带你重现考场,精准解题!


浙大建筑考研快题始终关注城市更新与建筑再生命题。今年题目从乡村语境转向城市设计范畴,聚焦高校旧图书馆改造为综合性教育设施,在功能复合、流线重构与空间激活等维度设置考点,体现了当下建筑学教育对既有建筑改造、功能复合与城市微更新等议题的深刻关注,同时也延续了浙大近年来注重现实性、复合性与策略性的出题风格。
题目不仅考查学生对建筑功能、流线、空间的基本把控能力,更强调在既有结构限制下进行创造性转化与系统性组织的能力。
题目选择浙江大学华家池校区的图书馆进行改扩建设计,创新性地要求考生直接在发放的技术图纸中进行修改绘制,设计重点转移到了平面与空间当中,更强调设计基本功的考察。
华家池图书馆介绍:浙江大学图书馆华家池分馆位于美丽的华家池畔,现有馆舍面积11000平方米,阅览座位约480席,是华家池校区的标志性建筑之一。2010年9月,随着华家池校区农生环学部的整体搬迁,华家池分馆的功能与使命从过去的以收藏农业与生物文献为主的专业图书馆,转而成为以存放利用率相对较低的文献资源为主的储存图书馆。
华家池图书馆北临校园主干道华池北路,西侧有良好的湖面视野,总平和功能设计需考虑建筑与场地环境的关系做到合理分流、景观资源整合。


【考点聚焦】
1、系统性矛盾解决:首要任务是清晰处理 “校内-校外”双轨人流的混杂问题,并以此为基础组织所有功能。
2、有限条件下的创新:在保留原有结构框架的前提下,实现从“藏书库”到 “产学研互动枢纽” 的功能质变。
3、空间价值再造:将冗余的交通中庭转化为能承载多元活动的 “立体校园客厅” ,是方案脱颖而出的关键。
4、务实的环境整合:新增停车位等要素需无缝融入校园肌理,体现整体性思维。
题目所给的核心设计任务可以归纳为如下四点:
然而,一个成功的改造方案绝不能仅仅停留在技术性应对的层面,它必须更深层地回答设计与价值之间的根本命题——实现建筑在功能、空间与社会三个维度的价值跃升。因此,我们应带着如下思考着手解决具体设计问题:
1. 功能价值:如何平衡“培训”与“阅读”的主次关系?公共空间如何促进两类使用者交流?
2. 空间价值:如何在既有框架下创造富有层次的中庭体验?新旧元素如何对话?
3. 社会价值:高校建筑如何适度向社会开放?建筑改造如何回应教育模式变迁?
策略一:流线重构——双轨并置
核心矛盾
原单一入口无法区分静谧的学术流线与高效的培训流线。
校内流线
建议保留并适度优化原临湖主入口。此入口应成为校内师生进入建筑的主要通道,直接、便捷地服务于阅览、自习、研究等需要静谧环境的功能区域。此流线应尽量避免与培训人流的大面积交叉,维护静区环境的品质。
培训流线
在建筑的另一侧(如临近校园次级道路或停车场的方向)为培训班设置完全独立、标识醒目的入口及门厅。
分流策略
可以结合双首层的设计策略,部分保留原有建筑中大楼梯的设计,利用大楼梯进行分流,垂直区分校内人群和培训人群。
策略二:功能重组——垂直功能分区、水平软性划分
重点关注改造的合规性与文脉延续,需严格遵循 “原拆原建或改造” 原则,控制建筑面积不超原有 1.5 倍,同时保留建筑乡土肌理,植入现代功能。
核心矛盾
“培训为主、阅览为辅”的复合要求,需在垂直维度解决动静干扰,同一层内不同尺度空间需巧妙划分。
B1-1F:公共活力层
作为建筑与城市、校园及场地衔接的界面,底层部分可以设置:培训班独立门厅与接待、面向所有人的咖啡厅与简餐区、临时展览厅/信息发布区、主要垂直交通枢纽(连接各层)、以及根据场地条件设置的地下或地面停车场出入口。同时,原有的书库出入口也可以在底层保留设置。
2-3F:核心教学层
作为“培训为主”功能的承载主体,这两层应集中布置不同规模和类型的标准培训教室、小组研讨室、教师办公室与休息室。空间布局可灵活采用模块化组合,以适应不同的教学模式。此区域应紧密围绕中庭布置,并可在中庭周边穿插设置开放或半开放的自习角、交流休息区,促进课间非正式交流与协作,形成浓郁的学习与研讨氛围。
4-5F:静区沉淀层
设计仍需要回归图书馆的本质,将需要高度专注与安静环境的功能置于上层。此部分服务于校内师生及深度研究者,可包括:开架阅览室、专题藏书区、个人研究间/卡座、多功能阅览室等。功能设置考验考生对日常生活的观察和积累,需要及时从脑海中的功能素材库中摘取合理的阅览空间置入。
水平软性划分
对于同一层内大空间直接通过墙体划分会过于生硬,小空间可以直接采用传统墙体分割,而大空间可以尝试采用层高划分(下沉空间)、柱子划分、隔墙划分、绿化划分、楼板划分(上层楼板限定下层空间)、庭院划分等多种手段形成软性分隔,形成具有灵活空间限定的流动空间,实现功能上的区分、视线上的联通。


策略三:中庭激活 ——结构性重塑与事件植入
核心矛盾
原有中庭空间单调,无法承担“活力枢纽”的新使命。
竖向连接与形态重塑
大胆对原有中庭区域进行立体化改造。可局部切除或整体扩大楼板,创造贯通多个楼层的壮观挑空;增设富有雕塑感的旋转楼梯、空中观景平台、透明连廊,不仅解决交通,更成为引导探索、创造多视角互看的趣味装置。巨大的天窗或侧向高窗引入变幻的自然光,成为建筑内部的“天空”。


功能植入与事件激发
中庭的“地面”与“空中”都应成为活动的容器。底层可设置大台阶式休息区(兼作小型讲座场地),周边布置灵活布展区与共享工作长桌。
各层挑廊平台可成为即时交流角或主题书展区。通过植入这些功能,中庭本身就能持续“生产”事件,吸引人群驻留、观察、互动。





策略四:景观整合——从“观看”到“融入”
场地临湖的景观优势未被充分利用。
视线的战略性框景
最大化利用临湖界面,将咖啡厅、主要阅览区及休息平台朝向湖面。通过设计 水平长窗、转角玻璃或退台,将湖景转化为建筑内部的全景画卷。
将室外平台设计为如 校园台阶般宽大、可停留的立体公共路径。这些平台应串联各层功能,并与室内中庭空间形成互动,打破室内外界限,将活动自然引向户外。


// 01
猎人角皇后图书馆(纽约)/Steven Holl Architects
从建筑东立面的洞口可以看出,该项目分为儿童区、青少年区和成人区,东立面向各个区域开放,而各个分区之间是流动的。图书馆内部,温馨的竹木创造出吸引人的社交空间,向社区开放并为各年龄段的人们提供有趣的空间。
自然光穿过四周的大扇窗户进入室内,使空间充满活力。沿着开放楼梯节节上升的书架及相邻数字工作站整合了数字区和图书区。核心图书区下方的一层礼堂提供了公共会议和活动空间。
楼梯在不同夹层间回转,连接了不同阅览区并止于享有城市及河流景观的屋顶露台阅览区。





案例的核心在于通过大空间与开放楼梯实现功能融合。其 “窗景叙事” 手法同样极具启发性。其立面上的不规则洞口被精心设计为取景框,将内部活动与外部城市景观(如曼哈顿天际线)巧妙关联。
本次图书馆改造,应最大化利用湖景的景观资源,将阅览座位、休息平台与观景窗口结合,创造从私密角落到开放平台的多样化阅览体验,使优美的湖景本身成为建筑最珍贵的“藏书”。
此外,建筑底层配置的灵活公共空间(如礼堂) 也值得借鉴。在快题设计中,可考虑将首层靠近入口或中庭的区域设置为多功能厅、展览区或活跃的讨论空间,与咖啡厅等功能结合,形成开放的公共基座,有效促进校内师生与培训班学员之间的交流与融合,回应题目中对功能复合与开放性的要求。// 02
温州肯恩大学学生学习与活动中心/Perkins&Will
项目将功能多元复合的学生活动中心与图书馆创新地结合起来,重新定义了大学校园图书馆的功能,体现出二十一世纪学习空间的变革发展。在这里,一动一静之间汇聚着校园的人流,成为校园生活的核心场所。

设计创造了一条贯穿建筑的 “垂直街道” ,它将校园主要人行步道向上延伸,串联起各层功能区,形成了鼓励偶遇与交流的公共路径,并将室内空间体验延伸至室外。

建筑外观通透、轻盈,水平延伸的体量和屋檐与周围的山水景观(尤其是中心湖景)充分融合。其清晰的横向线条语汇,在叠加中强化了建筑的仪式感。




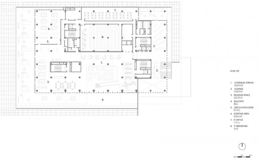
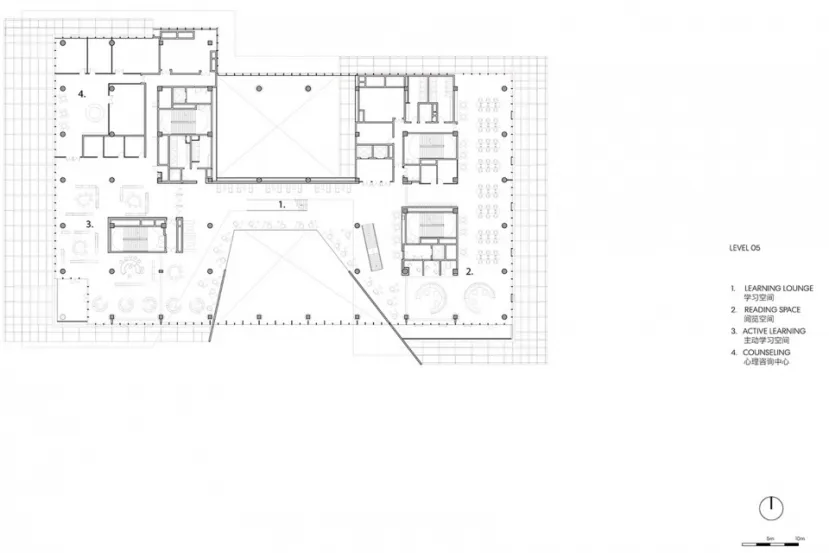
剖面图▲

总平面图▲

首层平面图▲

三层平面图▲

五层平面图▲
该设计的核心在于景观的主动性融合。通过通透立面与水平挑檐,建筑将外部湖景“拉入”室内,形成连续框景。
在本次快题设计中,应将咖啡厅、阅览区等主要公共功能朝向湖面布置,最大化利用这一景观资源,并模糊底层边界,让室外空间渗透进来。
更关键的是其 “垂直街道”的平台理念。室外平台不应是孤立的,而应是如校园台阶般宽大、贯穿多层的立体公共路径。
设计中可围绕中庭或临湖面,设计一系列兼具交通、停留、观景与小规模活动功能的复合平台,使其成为激活建筑、促进交流的核心活力带,从而超越单纯的交通功能,塑造出富有层次的场所体验。
本次图纸表达部分和往年有较大出入,没有强制要求效果图的绘制,而是直接在发放的技术图纸中进行修改,设计重点转移到了平面与空间当中,更强调设计基本功的考察。绘制时需要考虑如下内容:
1、总平面图:需清晰表达建筑与湖体、校园道路的关系;明确标注“校内师生流线”与“培训班流线”的来向、入口及场地内路径;清晰绘制不少于10个标准车位,并标明与主要入口的关系。适当表达周边环境、绿化及主要铺装。
2、各层平面图(至少两层):选择最能体现功能重组与流线组织的两层,建议选择首层、三层、顶层空间。首层空间体现考生对于建筑公共性、流线组织的思考;三层作为大部分考生选择的图书层,可以引入不同种类的阅览空间体现考生的日常积累;顶层空间可以有屋顶花园、室外平台的设计,体现城市设计的思考。
3、剖面图(至少一个):本次设计重点关注剖面空间,甚至可以直接从剖面入手去进行设计,首选剖轴测图、剖透视图代替轴侧效果图进行表达。需绘制清楚各楼层与中庭的空间关系、挑空与连廊、天窗形式、室内外平台等。
4、分析图与设计说明:秋季快题训练中,我们反复强调了对分析图绘制方法的积累,引导大家学会用简练的图示语言表达核心设计策略。设计说明应提纲挈领,呼应分析图,阐述设计理念与解决策略。
方案一


方案点评:该同学方案两点在于底层平面进行了部分架空处理,留出通道将湖景与校园道路通过架空通道直接相连,这一操作手段可以吸引大量校园人流走入建筑、充分释放了建筑的活力。
在短时间内对每层平面都进行了改造设计,方案较为完整;缺点在于功能分区仍然不够纯粹,围绕中庭进行的空间操作还不够丰富,整体空间变化相对单调。
方案二



方案点评:该同学对总图进行了详细设计,场地设计基本合理,详细区分了不同人群的流线满足题目要求。
功能分区顺应原有空间形态简洁纯粹,采用了隔墙、绿化等对公共大空间进行了合理划分,曲线墙体巧妙处理成了多功能厅;同时中庭空间对楼梯和平台进行了曲线处理,丰富了空间形态;
不足之处在于中庭空间仍然不够丰富,平面划分手段还相对单一,且建筑对环境呼应较弱,除了功能设置呼应湖面外,应考虑更多空间手法呼应湖面。
方案三

该方案围绕中庭空间进行了重点设计,从庭院、楼梯形态、到围绕中庭的退台空间形成视线上的变化,手法多样、空间变化丰富;
同时,平面具有收放变化,不同层高都有一定的室外平台,尤其五层做了部分的临湖观景平台,充分利用了框架结构楼板变化相对自由的结构特点,做了一定的室外观景空间。
不足之处在于平面空间处理相对粗糙,空间尺度把控不足,造成一定公共空间的面积浪费。
方案四




方案点评:该方案的亮点在于五层空间做出了室外平台,同时通过体块咬合使平台延续到五层的屋顶之上,形成了丰富的室外观湖路径。
设想在图书馆内办公、研学人群从室外楼梯进入室内,再从室内空间被引上室外平台,形成连续的观湖流线,形成了对湖景资源的充分利用;
平面空间通过隔墙、通高、高差等手法进行限定,变化也相对丰富。不足之处在于功能分区不够纯粹,大空间的处理比较简单,空间尺度把控不足。
历年浙大建筑学研究生录取情况

历年浙大建筑学研究生三石状元榜

上岸浙大,必来三石!
最靠谱的选择!















往期回顾






考研红榜
考验经验
三石干货
课程总结

2025考研全面启动
欢迎大家加入
我们三石快题2025考研qq群
群里有各种福利资料
学长会为大家解答各种问题
三石与大家一起备战2025

编辑/审稿:三石

三石快题
三石快题致力于浙江大学建筑学考研。一对一快题点评、独一无二的建筑学基础教材以及有着丰富经验的浙大学长将助你圆梦浙大。